お問い合わせ 03-5322-6518
受付時間 10:30〜18:30 (水曜日休館)
家づくり相談[無料]

OZONEがお手伝いした
住まいの事例

一覧へ戻る

借地と暮らしを分けて始める、新たな住まいづくり

S様が住んでいた賃貸併用住宅は、所有地と借地にまたがって建っていました。
今回のご相談は、奥まった借地上の既存建物はそのまま活かしつつ、生活環境の良い道路側の所有地のみで自宅を建替えたいというもの。新居は自然素材と高気密高断熱、安全性を重視。広い洗面脱衣室や日当たりの良いLDKをというご希望でした。

既存建物の特徴と建替えの課題

既存建物の特徴と建替えの課題1
既存建物の特徴と建替えの課題2

敷地は商業地域内で高層建物に囲まれていて日照環境が厳しい場所にあります。築50年以上の現建物は1階を居住、2階は4戸の賃貸として利用されていました。借地部分はご兄弟が相続されたので、借地部分だけそのまま残して賃貸や倉庫として活用する計画です。
分離した建物は安心・安全に使用できるようにしなければなりませんし、借地権を持つ親族との調整も必要となります。また地主さんとの借地契約に抵触しないように進めなければなりません。工務店はご希望の建替えの希望を満たす以外の多くの対応力が求められるため、工務店選びが重要となります。
そこでS様はOZONEの「新築・建て替えコンサルティング ベーシックコース」のサポートを受けて進めることに。住まいづくりコンサルタントと共に計画整理、面談、設計コンペと進み、これらの複雑な条件を共に対応してくれる工務店を探し、最終的に工務店は「ますいいリビングカンパニー」が担当することになりました。

【既存建物の改修と新築の配置】

配置図

既存建物の改修と新築の配置1

当初3階建ての検討も行いましたが、日照条件の差が少なく、老後を見据え、移動しやすさを優先して2階建てを選択。また防火地域内ということで、2つの建物を各々、延床面積を100㎡以下に抑えることで、耐火建築物にする必要がなくなり、コスト面でもメリットがありました。

既存建物の改修と新築の配置2

借地上に建つ既存建物部分を残して解体した様子。
新たに修復された黒い焼杉貼りの外壁が見えます。

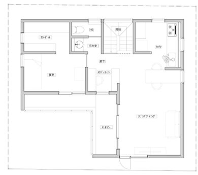
平面図(1階・2階)

平面図(1階・2階)1
平面図(1階・2階)2

外観

新築部分は左官仕上げの自然素材の外壁に、道路側へ視線を遮るための袖壁や木塀、門扉を設置。前庭は木塀で囲み、ご希望のヤマボウシのシンボルツリーを植え、落ち着いた空間を創りました。

外観

前庭

前庭には木塀を巡らし、ご希望のシンボルツリーのヤマボウシの他にも、工務店と相談しながらご希望の植物を植えて、趣味の園芸を楽しまれています。前庭内部は木塀に囲まれて落ち着いた空間となっています。

前庭1
前庭2

アプローチ・玄関

門扉から玄関扉へのアプローチは前庭のかたわらに配置され、季節ごとに木々や草花が楽しめます。
玄関内には靴の脱ぎ履き時に座って使えるスペースを確保。床材は杉素材を使用しています。土間収納には靴、傘、コート、園芸用品、ゴルフバッグなど多用途に収納できるスペースを設けています。玄関には神棚を祭ります。

アプローチ・玄関
casehousedetailpost57_17.jpg

多目的室

趣味のCDやレコード、オーディオ機器、楽器(ギター、キーボードなど)を収納。友人7〜8人が集えるスペースとして活用します。

多目的室

和室

1階には板の間付きの4畳半の和室を配置。床柱は元の家のものを再利用しています。和室には仏壇と和ダンスが置かれます。必要に応じて多目的室と引戸で繋げれば、広く利用することも可能です。

和室1
和室2

階段

階段下には、洗面脱衣室側から使う階段下収納を配置。2階の階段際にはエアコンの冷房効率に配慮して、手すりの中に引戸を用意しています。

階段1
階段2

LDK

2階のLDKは日当たりが良く、道路から距離をおいた落ち着ける空間です。ダイニングスペースはコンパクトに済ませ、6~7人が集まる際には床に座って過ごすことも多く考慮しています。リビングには55インチのテレビを置く予定です。

LDK1
LDK2

キッチン

お料理集中型のセミオープンなキッチンです。

キッチン

スタディーコーナー

スタディーコーナー1
スタディーコーナー2

寝室

2階奥の静かな環境の寝室は、広いクローゼットが併設しています。 東側に朝日が入る掃出し窓があり、LDKに繋がる長いL型のバルコニーがあります。
前庭に植えたシンボルツリーが大きくなれば、目隠しとなり、美しい木立が窓の外に見えることでしょう。

寝室
<工務店より>

ますいいリビングカンパニーは、「もっと自由な家づくりを」という思いを大切に、お客様の心や人生に寄り添いながら、家づくりを行なっています。
S様邸では、国産木材と自然素材の左官材「鹿沼土と漆喰を混ぜた完全自然素材のオリジナル仕上げ材」を用い、建材から発生する化学物質が少ない、本当の健康住宅を形にしました。すべての部屋が庭に面するように設計しており、どこにいても自然を身近に感じられる、開放的でやわらかな住まいに。お客様と一緒に選んだブルーベリーやレモンの木々が、暮らしに季節の彩りと楽しみをもたらしてくれます。また、以前の住まいで使われていた床柱を再利用し、大切な記憶がそっと息づく空間となりました。セルフビルドとして、寝室やクローゼットの先の左官材を塗り、キッチンや洗面のタイル貼りにはお客様ご自身が参加。手をかけることで住まいへの愛着が育まれ、日々の暮らしの中で少しずつその表情を深めていく、そんな住まいが生まれました。

<お客様より>

家を建てるのは初めてで、何をどうすればよいのかさっぱり分からず、OZONEさんに相談に行きました。コンサルタントの方と面談を重ねるうちに自分の心の中が整理され、家のデザインと気持ちのデザインも固まっていったように思います。
趣の違う数種類の設計のプレゼンを受けられるのは良い経験で、最適な工務店さんを選択する事が出来ました。
ますいいさんはセルフビルドというのを取り入れていて、寝室の壁の漆喰塗り等をやらせて頂いたのですが、工事業者の方々も皆さん親切丁寧で大変楽しく思い出に残りました。
体にも心にも優しい想像以上の家を建てることが出来て満足しています。

詳細情報
●所在地:東京都
●構造:木造2階建て
●延床面積:99.16㎡
●コース申込:2022年6月 新築コンサルティング ベーシックコース
●設計期間:2023年2月~2024年9月
●工事期間:2024年10月~2025年3月
●プロデュース:OZONE家design
●担当コンサルタント:久保尚子・村松葉子(文)
●設計・施工:ますいいリビングカンパニー

ご利用サービス 新築・建て替えコンサルティング ベーシックコース