お問い合わせ 03-5322-6518
受付時間 10:30〜18:30 (水曜日休館)
家づくり相談[無料]

OZONEがお手伝いした
住まいの事例

一覧へ戻る

SOHO3戸が「はなれ」を形成。Trois-M

都心に賃貸SOHOを新築した事例です。
難しいプランを建築家の設計力で解決し、建築雑誌GA JAPAN、新建築にも紹介される洗練された建物が完成しました。

施主のA様は
『ハウスメーカー何社かにプランを作成してもらったが、旗竿地で3住戸いれるのは難しいようだ。長屋形式の3階建て提案では良いプランが出てこないし、賃貸2戸として設計を依頼すると2世帯住宅のような提案しか出てこず、希望に合わない。』
というお悩みでOZONEへ相談にいらっしゃいました。

より工夫した間取りや使い方の提案を期待し、依頼先を建築家に変更。
賃貸集合住宅計画のサポートとして、フルコースをご利用頂きました。

高田馬場駅からほど近く、大通りから脇道に少し入った落ち着いた住宅街にこの共同住宅は建っています。相続した土地を賃貸にして活用したい考えですが、道路からの間口の狭さが集合住宅の設計を難しくしていました。

そこでOZONEでは3名の建築家の方々と面談、建築家ならではの解決方法をアドバイス頂き、コンペ形式でプラン提案を頂くことで、ベストな敷地の活用方法を探ることになりました。

sohotrois-m_07-2.jpg

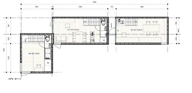
平面図 1F

sohotrois-m_07-1.jpg

平面図 2F

sohotrois-m_08.jpg

黄緑のライン:敷地の接道部分

デタッチメント・アパートメントという発想

最終的にA.L.X.三幣 順一氏の提案による共同住宅(SOHO)案に決定。
小規模賃貸のため、事業収支を考えると構造は木造が良いのです。しかし賃貸間の≪遮音性能≫が大きな課題となっていました。

三幣氏の提案は、3つのメゾネット住戸が手前から奥に3戸並ぶ構成。上下階は同じ借主用の住戸とし、木造床の弱点に対して予算をかけずにカバーしています。

隣の住戸間とは接する壁面を最低限とし、接している壁面は構造が独立した2重壁にして縁を切ることで、各住戸間の遮音性能を高める提案です。

三幣氏からは、あえて容積率を余らせて無理のない範囲の賃貸運営をするという提案もあり、建て主様の肩の荷が軽くなりました。
魅力的なプランとデタッチメントという発想がA様の心を動かしたようです。

隣の住戸と接する壁は、二重に!

sohotrois-m_09.jpg

隣家と接する部分は最小限にし、二重壁で防音遮音しています。

完成した空間

◆Aタイプ(道路側)

1階は前面道路に大きく開口がとられています。この住戸は設計者がご自身の設計事務所として借り受けることに。場所柄や洗練された建物効果もあって他の2戸もSOHO、住居として借り手が決まったとのことです。

sohotrois-m_10.jpg

1階 道路側を見る

sohotrois-m_11.jpg

2階 デタッチメントの考え方により、隣のBタイプとは外壁が離れているため、抜け感のある気持ちよい大きな開口が可能になっています。

◆Bタイプ(中央)

奥に専用庭があり、植えられたモミジに向けて窓が配されており、2階の窓からは梢が楽しめます。外からの視線を全く気にする必要がありません。秋には紅葉が美しいことでしょう。

sohotrois-m_12.jpg

1階 モミジが植えられた専用庭

sohotrois-m_13.jpg

2階 窓から専用庭上部が見える

sohotrois-m_14.jpg

2階のCG提案時の資料です。完成写真とほぼ同じことに驚きます。

◆Cタイプ(一番奥)

隣地の塀があるおかげで、隣からの視線は遮られます。植栽した樹木は葉色が明るい樹木が選ばれていました。これから緑が豊かになると、景色が良くなりますね。

sohotrois-m_15.jpg

1階 隣地は小さな駐車場で、塀の上部は明るくとても静かな環境です

sohotrois-m_16.jpg

2階 窓から見えるのは隣家の見事な大木

≪ コンサルタントから ≫

設計者の三幣さんにご案内頂き、実際の建物のお伺いして感じたことは、ミニマルな空間の中に配された開口部からの、心地よい光と風、そして見える景色がとても美しい!ということ。
また、以前OZONEの別のお客様の住宅が完成した時にもご訪問させて頂きましたが、居間のソファーから見上げたトップサイドライト。その窓から見える青空と流れる雲がとてもさわやかで印象的だったことを思い出しました。

≪ 建て主様から ≫

学生の活気に溢れた駅前から東南に5分ほど歩いた静かな高台にあった実家の庭に、この町にとって新感覚のスタイリッシュな家を建てることができました。シルバーグレイの洗練された外観に、ところどころ自然の木を取り入れ、住む人に安らぎを与えます。シンプルな内部は、アイデアしだいでSOHO・書斎・アトリエなど自由に変貌できる楽しさがあります。
建築家三弊氏の語る「方丈の庵」とは、今風にいえばミニマリストの究極的な住まいとも言えます。都心で働く人たちの隠れ家的存在となり、心地よく住んでいただけたらと願っています。
建築にあたり、最初のカウンセリングから始まり竣工に至るまでの2年間、OZONEの藤原氏・山内氏・千賀氏のアドバイスや後押しがあり、安心して進めることが可能になりました。ようやく完成に至り、心より感謝しています。

≪ 建築家から ≫

「デタッチメント・アパートメント/非接触型共同住宅」 山手線高田馬場駅から徒歩数分の住宅地にある間口4mの旗竿敷地に建つ共同住宅。元々住宅の庭だった部分が相続で分筆されて独立した敷地となった経緯を持つ。
三戸の賃貸住宅は「住宅+α」の用途を想定し、各ユニット共に27㎡(八坪強)程度の大きさ。さらに上下に分割したメゾネットタイプとしており、結果、ユニットの各階平面は、鴨長明の方丈の庵とほぼ同じ大きさであり、住宅の庭に三軒の庵を並べた設えとなっている。
三つのユニットは最小限の部位でつながっており、安全条例で義務付けられた幅員1.5mの屋外避難通路を共有することで、法規的に共同住宅として成立している。この小さな賃貸を更に小さく使うことで、各ユニットは上下階で異なる性質を持つ二つの場所を得ている。
一階部分は、前面道路や庭などとつながり、それぞれが独立して大地とのつながりを感じられる。二階部分には独立したユニットの証として全周天井面でスリット状の開口が設けられて空と連なり、東西南北から一日中光が巡る。
この建ち方は、都心部のかつての庭を、三つのユニットが共有するパンデミックを経た暮らしを反映した非接触(デタッチ)型の共同住宅と捉えられるだろう。

詳細情報
●所在地:東京都 ●構造:木造 ●延べ床面積:82.44㎡(約25坪) ●コース申込:2020年9月 ●設計: 2020年11月〜2021年9月 ●工事期間: 2021年10月〜2022年5月 ●担当コンサルタント:藤原 忍、山内 亮美、村松 葉子(文) ●インスペクター:千賀 良作 ●設計:三幣 順一 A.L.X.(一級建築士事務所ARCHITECT LABEL Xain) ●施工:株式会社 伊藤工務店 ●写真:鳥村鋼一

ご利用サービス フルコース